推薦新聞
- 無塵車間裝修流程有哪些步驟
- 潔凈手術室與層流手術室的區別
- 潔凈度級別A、B、C、D解析及其與傳統級別的對應關系
- 萬級凈化車間和千級凈化車間哪個級別高
- 食品無塵車間要達到什么標準
- 別再問“凈化工程公司哪家好”這樣的問題了
- 無塵車間施工標準要求
- 無塵車間裝修完成后還要做哪些工作
- 建設一個電子無塵車間要注意哪些
- 裝修一個十萬級無塵車間要多少錢呢?
聯系我們
中山科瓦特凈化工程有限公司
全國服務電話:400-6818-300
業務咨詢QQ:1582339372
業務咨詢:180-2210-6989
電話:0760-23626818
傳真:0760-23626819
微信平臺:125737369
郵箱:kewatt@163.com
微搏:http://e.weibo.com/kewate
網址:http://m.sycxyms.com/
|
制藥廠凈化車間裝修設計要做好三防工作 |
| 制藥潔凈廠房在裝修的時候有很多方面的要求需要我們注意的,其中最為主要的就是必須做好對火災的防護、對靜電的防護以及對噪聲的防護方面的設計。下面我們就來重點的了解一下。... |
|
醫藥潔凈庫房整體解決方案 |
| 作為服務醫藥行業多年的凈化恒溫恒濕等工程,科瓦特小編告訴大家需要做GMP認證 的醫藥倉庫 環境標準應該參考中國藥典對常溫陰涼和冷處的要求,同時要參考GMP和 GSP的要求。 建設醫藥倉庫應能滿足下列要求 : 一 庫區選址及安全要求: 1)選址要求:藥品儲存... |
|
血液制品GMP凈化車間建設方案 |
| 血液制品屬于生物制品三大類之一,(生物制品工藝設計分為疫苗、診斷試劑和血液制品三大類.) 主要指以健康人血液為原料,采用生物學工藝或分離純化技術制備的生物活性制劑。血液制品生產 潔凈車間建設除了要求遵循工藝及行業要求規范,還應嚴格依據國家最新... |
|
醫藥GMP潔凈室總體設計布局規范 |
| 本規范適用于新建和改建、擴建的潔凈室廠房設計,但不適用于以細菌為控制對象的生物潔凈室工程。本規范有關防火和疏散、消防設施章節的規定,不適用于建筑高度超過24米的高層潔凈室廠房和地下潔凈室廠房的設計。 在利用原有建筑進行潔凈室技術改造時,潔凈室... |
|
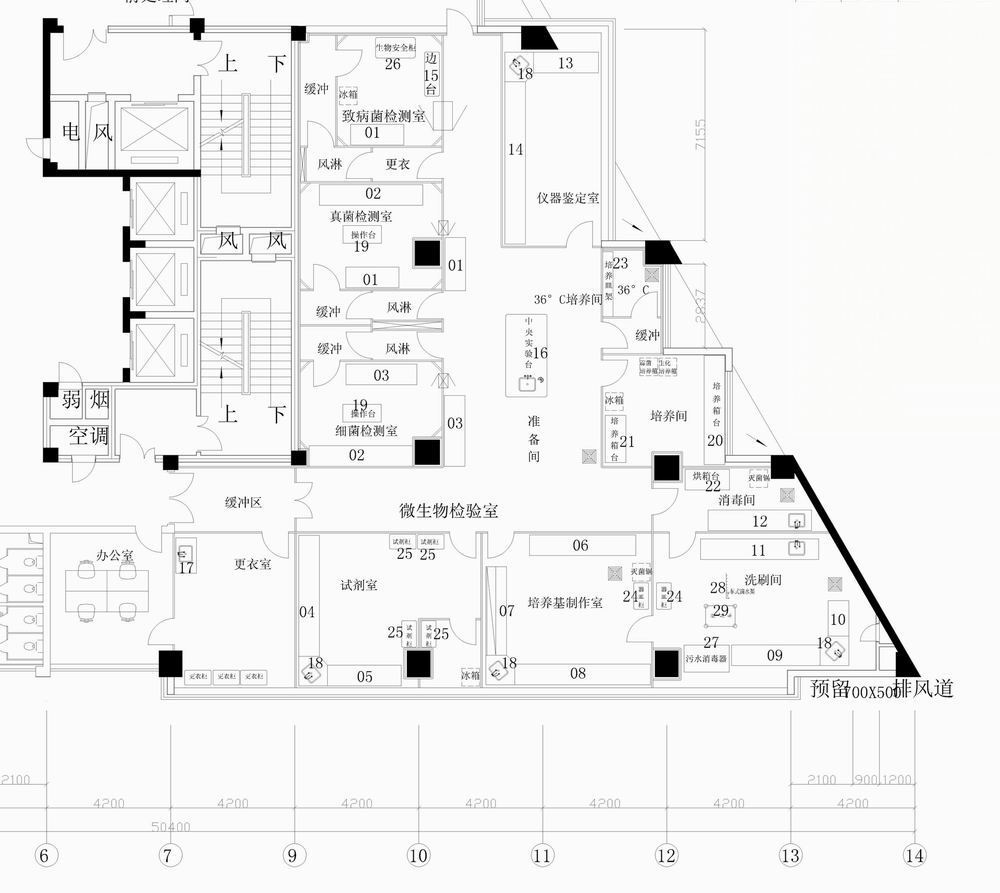
微生物安全實驗室設計整體布局的關鍵是什么? |
| 微生物實驗室良好的通風是關鍵,必要時更應配備抽風機。接種、分離及鑒定細菌等操作應在生物安全柜中進 行,對結核桿菌等傳染性極強的微生物學檢驗時必須在100%外臨床微生物學實驗室接觸多種有害微生物,為了防 止交叉污染,保護工作人員健康,實驗室應至少... |
|
萬級無菌潔凈車間設計方案 |
| 中山科瓦特在醫藥凈化行業已經有十余年經驗,下面就一醫藥器械企業的凈化工程為例進行產述, 藥廠萬級潔凈車間工程的方案: 方案概述 : 《體外診斷試劑生產實施細則(試行)》已實施近兩年,2011年已實施《無菌和植入醫療器械生產 質量體系管理規范》,在日常... |
|
制藥GMP車間潔凈度等級要求A/B/C/D與百級千級萬級等對照表 |
| 藥廠潔凈室區分為A,B,C ,D 四個級別區域,醫藥工業潔凈室和潔凈 區是以微粒和微生物為主要控制對 象,同時還應對其環境溫濕度壓差見GMP (2010),照度,噪聲等作出規定。醫藥工業潔凈廠房的空氣潔凈度 等級的見 GMP(2010),規定為A,B,C,D四個等級。... |
|
生物實驗室和生物制藥車間潔凈的主要目的是? |
| 1、排除各工作間內的廢氣; 2、確保各工作間必要的新鮮空氣量; 3、去除塵埃和微生物; 4、保持室內必要的正壓實驗室和手術室內的換氣量可按下列公式計算: V=100M/ K-Ko 式中:V式中:V必要的換氣量[m3/必要的換氣量[m3/(h人)](h人)]; M;MCO2的發生量[m3/CO2的... |
|
藥廠潔凈室的節能設計要點 |
| 隨著我國GMP達標藥廠的潔凈室建設規模迅速發展與擴大,從藥廠潔凈室設計上采取有力措施來降低能耗,節約 能源,已到了刻不容緩的地步。長期以來,藥廠潔凈室無塵車間設計中針對的主要矛盾是微粒,而節能問題一直未引 起高度重視。而從建筑布局、工藝條件上采... |
|
動物檢疫無菌實驗室的設計與擺放 |
| 檢疫實驗室設計,必須符合安全的要求。在從事高危險性病原微生物工作的實驗室,建筑周圍應有寬60cm、 深60cm的防鼠溝,實驗室建筑內不能有野生嚙齒動物竄入。實驗動物房必須嚴防動物逃逸,要求門窗嚴密, 動物籠和實驗室動物房門均需扣死或加鎖,特別對于禽... |

.jpg)
